Research takes a leap

Harvard Medical School

The 739,300 SF facility, including a 560-car underground parking garage, houses approximately 800 researchers and staff from various disciplines in 260,000 SF of research labs. These include Harvard Medical School’s Genetics Department and the Department of Microbiology and the Department of Immunology as well as HMS faculty from the Brigham and Women’s Hospital. The building also contains a 30,000 SF vivarium and amenities including a fitness center, a café, courtyard and a conference center including a 500 seat auditorium.
Presentation Mode
Image
2003JG27_7mb

The glass curtain wall design expression provides a transparency intended to feature the activities within, reflecting the forward-looking research that takes place in the building.

Image
2003JG27.422

Located within view of the main Medical School Quadrangle, the New Research Building (NRB) is the largest expansion of Harvard Medical School in nearly a century. The L-shaped building wraps around the existing Harvard Institutes of Medicine, a ten-story research facility housing HMS hospital-based faculty.

Image
2003JG27.405

A structural glass façade parallels the street front, relating to the scale of adjacent buildings, and wraps the entire four story lobby and conference center, providing a transparent and welcoming main entry to the facility.

Image
2003JG27.006-1.5

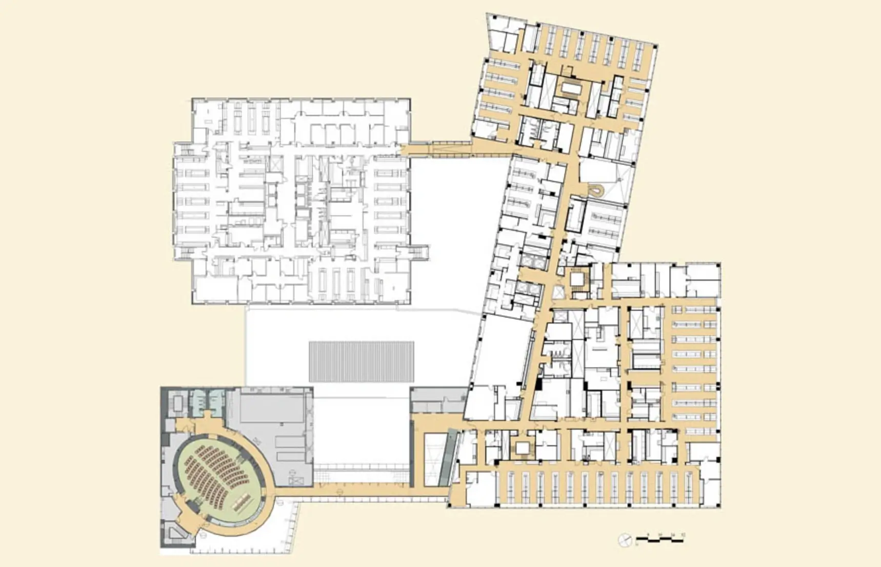
The 500 seat auditorium is the focus of a a three story conference center providing break-out areas and meeting spaces.  The center was designed to promote interaction amongst researchers within the building as well as within the larger Medical School campus.

Image
AR010501-16

Multiple two story sky lobbies, connecting department programs that span more than one floor, provide collaborative lounge and meeting spaces and feature clear glass facades with sprawling views of downtown Boston.

Image
Reich McCarroll Laboratory

Flexible open plan labs are clustered on nine floors to have hospital-based HMS faculty and basic scientists in adjacent labs, facilitating proximity to one another, allowing researchers to share information, and easing the transition of data from bench to bedside.

Image
Section East 05-08-01 Cropped 2
Image
Harvard Third Floor Cropped 2
Image
GrahamRamsay2a cropped

Built on the site of demolishes portions of the former Boston English High School, the New Research Building represents the successful development of a Brownfield site.

Photography: Warren Patterson Photography

Project
New Research Building at Harvard Medical School
Location
Boston, MA
Size
739,300 SF
Awards
2009 Merit Award For Design Excellence, American Institute of Architects, New England
2007 Higher Education Facilities Design Award, Boston Society of Architects
2005 Design Award, Boston Society of Architects
2004 Excellence in Lighting Design Award, Illuminating Engineering Society of North America (IESNA)

Research takes a leap

Harvard Medical School

Project
New Research Building at Harvard Medical School
Location
Boston, MA
Size
739,300 SF
Awards
2009 Merit Award For Design Excellence, American Institute of Architects, New England
2007 Higher Education Facilities Design Award, Boston Society of Architects
2005 Design Award, Boston Society of Architects
2004 Excellence in Lighting Design Award, Illuminating Engineering Society of North America (IESNA)
The 739,300 SF facility, including a 560-car underground parking garage, houses approximately 800 researchers and staff from various disciplines in 260,000 SF of research labs. These include Harvard Medical School’s Genetics Department and the Department of Microbiology and the Department of Immunology as well as HMS faculty from the Brigham and Women’s Hospital. The building also contains a 30,000 SF vivarium and amenities including a fitness center, a café, courtyard and a conference center including a 500 seat auditorium.
Presentation Mode
Image
2003JG27_7mb

The glass curtain wall design expression provides a transparency intended to feature the activities within, reflecting the forward-looking research that takes place in the building.

Image
2003JG27.422

Located within view of the main Medical School Quadrangle, the New Research Building (NRB) is the largest expansion of Harvard Medical School in nearly a century. The L-shaped building wraps around the existing Harvard Institutes of Medicine, a ten-story research facility housing HMS hospital-based faculty.

Image
2003JG27.405

A structural glass façade parallels the street front, relating to the scale of adjacent buildings, and wraps the entire four story lobby and conference center, providing a transparent and welcoming main entry to the facility.

Image
2003JG27.006-1.5

The 500 seat auditorium is the focus of a a three story conference center providing break-out areas and meeting spaces.  The center was designed to promote interaction amongst researchers within the building as well as within the larger Medical School campus.

Image
AR010501-16

Multiple two story sky lobbies, connecting department programs that span more than one floor, provide collaborative lounge and meeting spaces and feature clear glass facades with sprawling views of downtown Boston.

Image
Reich McCarroll Laboratory

Flexible open plan labs are clustered on nine floors to have hospital-based HMS faculty and basic scientists in adjacent labs, facilitating proximity to one another, allowing researchers to share information, and easing the transition of data from bench to bedside.

Image
Section East 05-08-01 Cropped 2
Image
Harvard Third Floor Cropped 2
Image
GrahamRamsay2a cropped

Built on the site of demolishes portions of the former Boston English High School, the New Research Building represents the successful development of a Brownfield site.

Photography: Warren Patterson Photography

Research takes a leap / Harvard Medical School
2003JG27_7mb
2003JG27.422
2003JG27.405
2003JG27.006-1.5
AR010501-16
Reich McCarroll Laboratory